
97084 Würzburg Objektnummer #2020154
Terrasse, Erstbezug, WLAN, PKW-Stellplatz
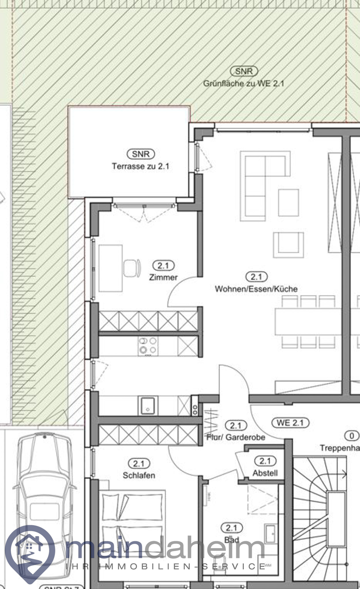
In ruhiger Lage des Würzburger Stadtteils Rottenbauer, günstig gelegen Richtung Giebelstadt an der B19, befindet sich diese Neubauwohnung im Erdgeschoß eines 3 Parteienhauses.
Als Erstbezug erwartet den neuen Mieter auf Zeit eine 2 Zimmerwohnung auf insgesamt 71qm, welche komplett ausgestattet sofort bezugsfertig zur Verfügung steht.
Die gesamte Wohnfläche ist mit Eiche-Parkettboden ausgelegt, die Möblierung ist sehr hochwertig und ansprechend.
Alle Zimmer sind über den Eingangsbereich einzeln zugänglich.
Mit einem Doppelbett, Ablageboards sowie einem sehr geräumigen Einbauschrank ist das Schlafzimmer möbliert. Von hier aus, wie auch von allen anderen Zimmer ist der Garten und die Terrasse erreichbar.
Angrenzend an das Schlafzimmer befindet sich das moderne Tageslichtbad mit attraktiven, gemütlichen Fliesen in beige, welches mit einer bodentiefen Dusche, WC und einem Waschbecken ausgestattet ist.
Praktischerweise verfügt die Wohnung ebenfalls über eine kleine Abstellkammer.
Die hochwertige Einbauküche in weiß matt ist mit erstklassigen Elektrogeräten von Siemens ausgestattet. Diese ist mit sämtlichen Kücheninventar (Geschirr, Besteck, Teller, Tassen, Töpfe usw.) bestückt.
Des Weiteren befindet sich hier ein Waschtrockner sowie eine Kaffeemaschine, Toaster usw.
Die Küche ist separat, jedoch offen in den großzügigen und hellen Wohn- Eßbereich integriert. Die Möblierung besteht aus einem Eiche-Eßtisch mit 4 Stühlen, einem Sideboard sowie einer großen Couch mit Couchtisch und TV.
Die nach Südwesten gerichtete Terrasse mit kleinem Gartenanteil ist von hieraus, wie auch von der Küche zugänglich.
Ein zur Wohnung zugehöriger PKW Stellplatz rundet das Angebot noch ab.
Eine Anmietung mit einer Mindestmietdauer von 3 Monaten möglich.
Bei Auszug wird eine Endreinigung nach Aufwand mit der Kaution verrechnet.
Die angegebene Miete ist eine Pauschalmiete inklusive aller Nebenkosten. Strom ist separat an den Energieversorger zu zahlen.

Angebotsnummer 2020202
ab 02.11.2025

Angebotsnummer 202018
ab 01.03.2026

Angebotsnummer 202037
ab 02.11.2025


Angebotsnummer 2020105
ab 02.11.2025


Angebotsnummer 2020101
ab 02.11.2025


Angebotsnummer 202042
ab 02.11.2025


Angebotsnummer 2020169
ab 02.11.2025